Welcome to Shreeya Group

CALL US:+ 91 - 9334110149

MAIL US : info@shreeyagroup.com

USHA RAM PRAWESH COMPLEX

Location: Nawada Gali

For Sales Enquiry: 9334115379, 9334110149

Completion Date: March 2026

Download Brochure

USHA RAM
PRAWESH
COMPLEX


USHA RAM PRAWESH COMPLEX, a landmark project by Sunrisesai Developers, offers a blend of modern amenities and serene living. Strategically located, this complex is designed to provide comfort, convenience, and a touch of luxury.

Book Now
Image 1
Image 2

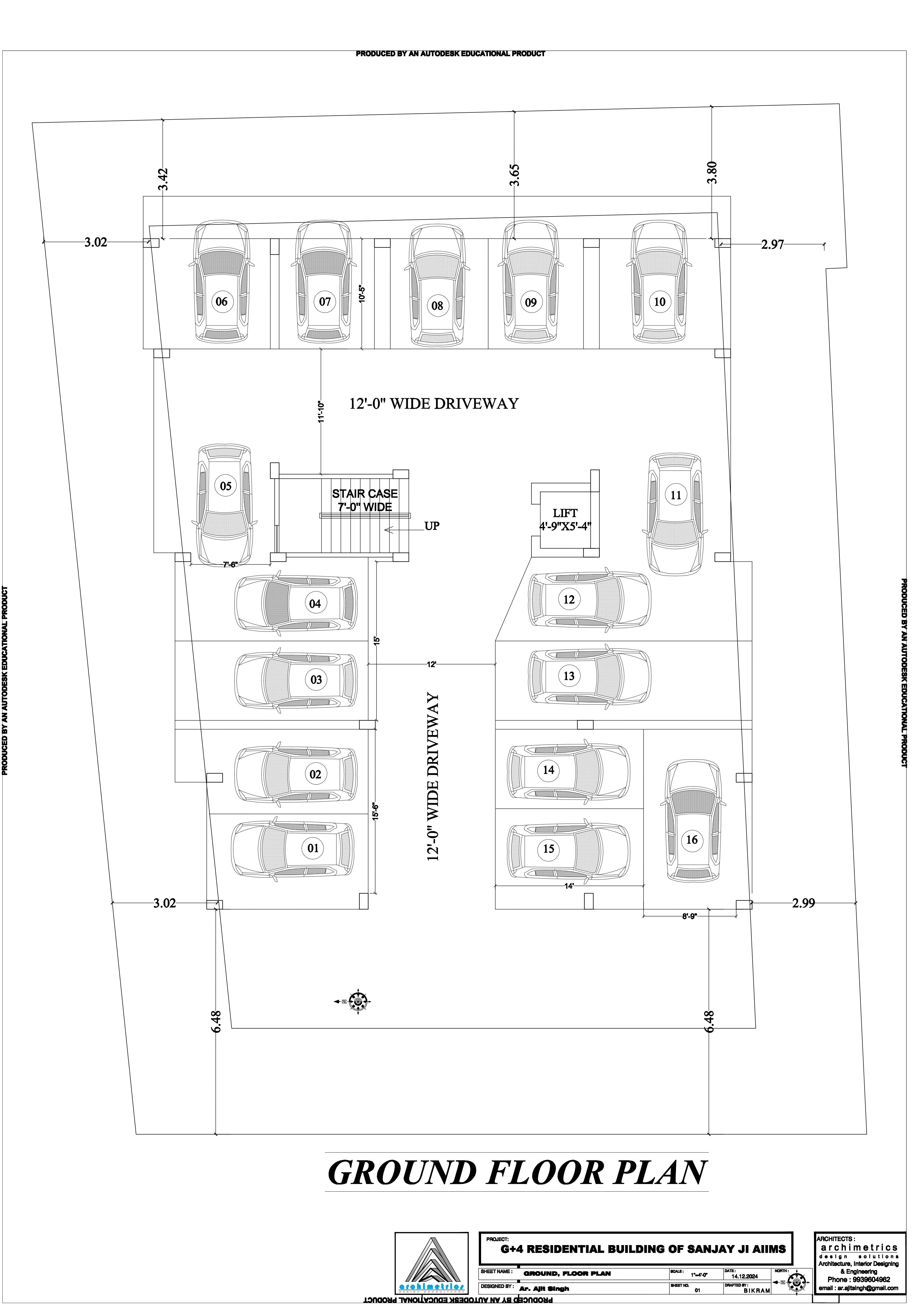
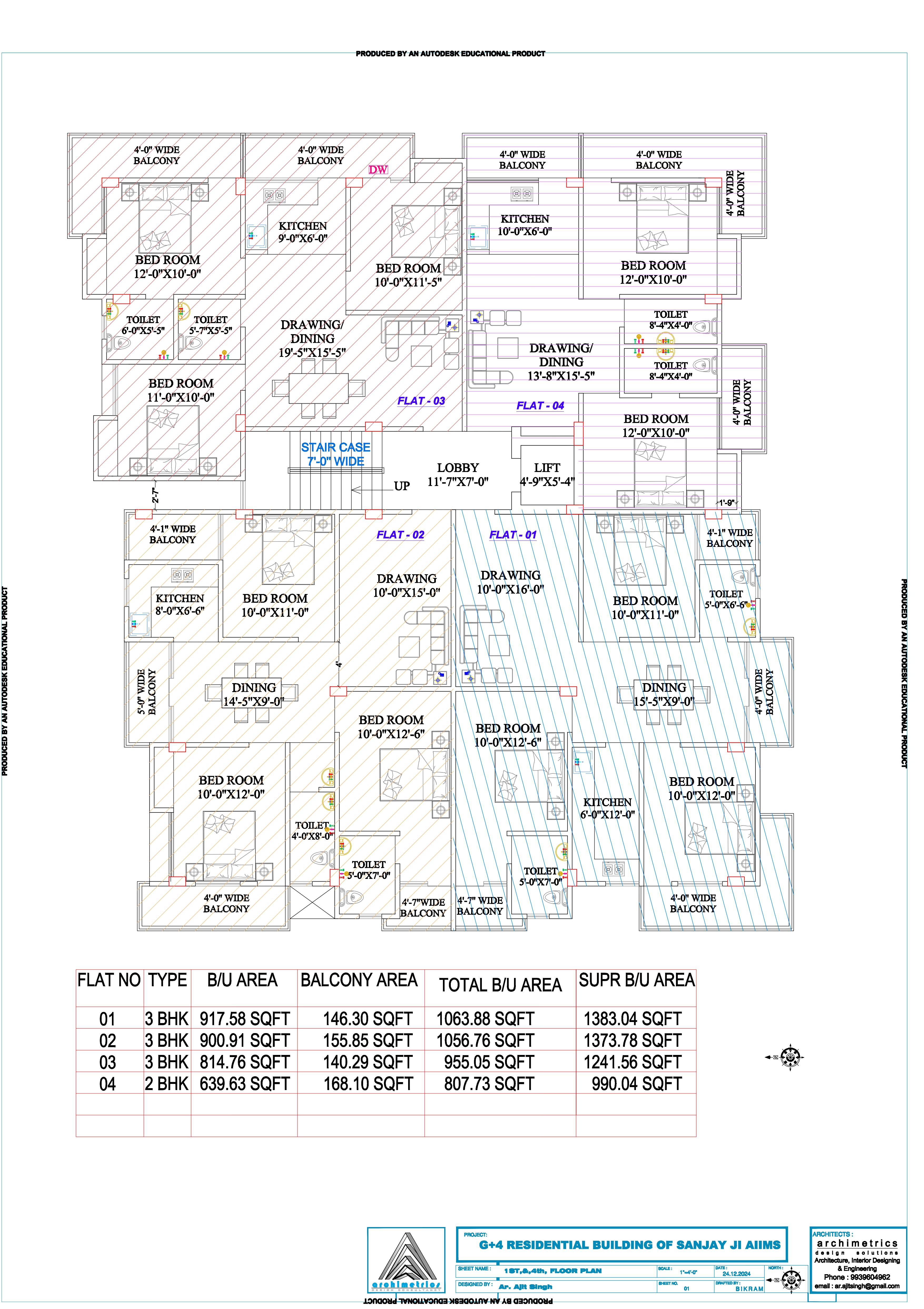
Floor Plan


At Shreeya Group, we are dedicated to transforming visions into reality. With a focus on innovation, quality, and sustainability, our projects are designed to provide modern, comfortable, and value-driven living and commercial spaces.

Card 1
Card 2
Card 3
Card 4